Schoyerer
Architekten
_SYRA
Aktuelles
Projekte
Profil
Kontakt
Links
Newsletter
Historie
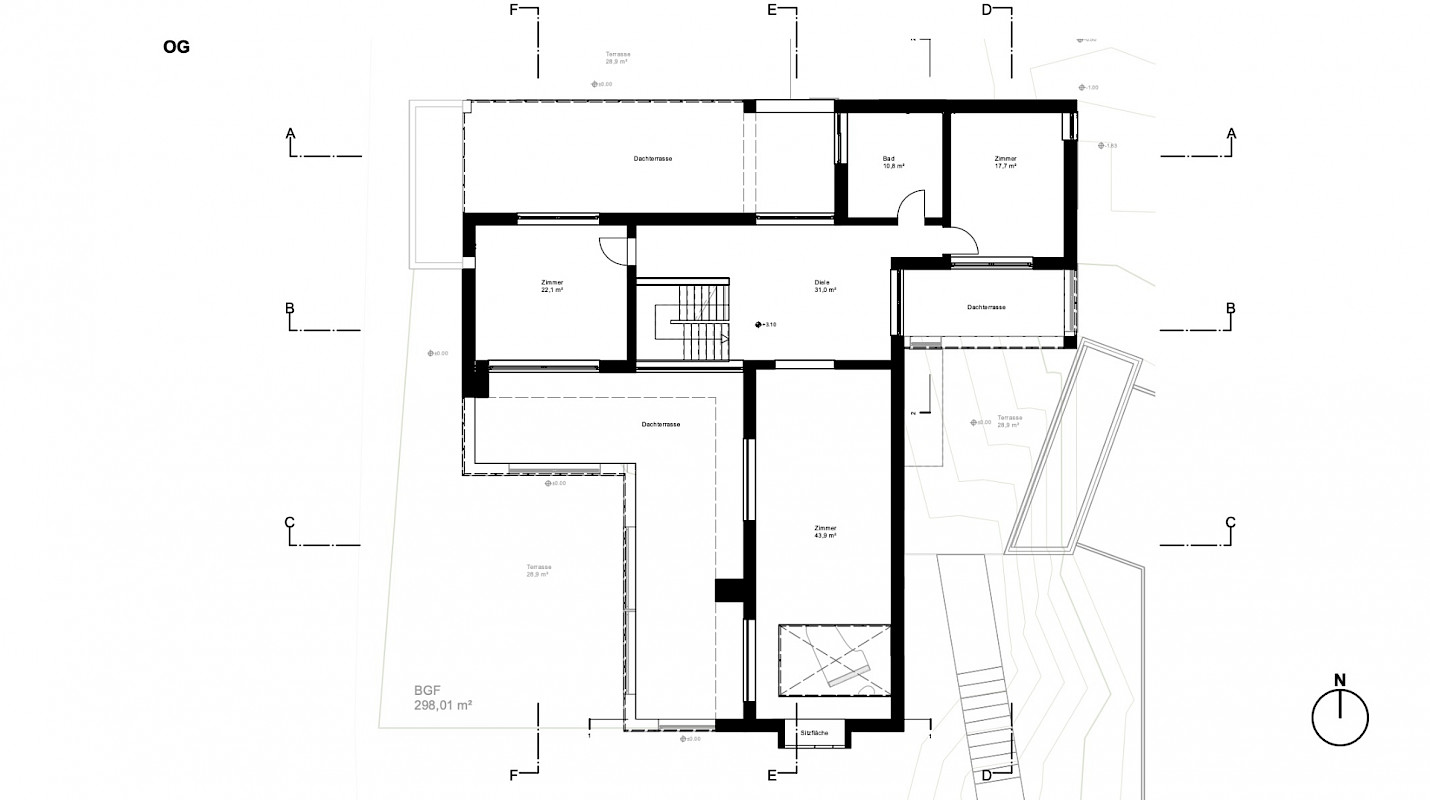
Villa im Taunus - Aufstockung
Taunus
PROJEKT-INFO
Nutzungsart
Wohnen
Projektzeitraum
2023
Typus
Umbau/Erweiterung
Status
Realisierung
‹
›