Neubaugebiet Hosenmatten
Ausgangslage
Das Neubaugebiet Hosenmatten in Lahr integriert bestehende Ackerflächen, Streuobstwiesen und Baumschulflächen in eine großflächige parzellierte Struktur. Drei Bebauungsstreifen gliedern das Gebiet, wobei Wohnbebauung, Infrastruktur und Freizeiteinrichtungen klar voneinander getrennt, aber funktional verbunden sind. Die Bebauungsfelder ermöglichen flexible Bauabschnitte mit Reihenhäusern, Doppelhäusern, Einfamilienhäusern und Mehrfamilienhäusern.
Konzept
Der Entwurf für das Neubaugebiet Hosenmatten setzt auf die Verknüpfung von Wohnbebauung mit Landschafts- und Freiraumstrukturen. Das Kernthema Neubaugebiet wird durch eine durchdachte Freiraumabstufung von privaten Gärten über halbprivate bis hin zu öffentlichen Flächen unterstützt. Infrastruktur- und Freizeitbänder verbinden die neuen Wohnstreifen mit der bestehenden Siedlungsstruktur in Lahr.
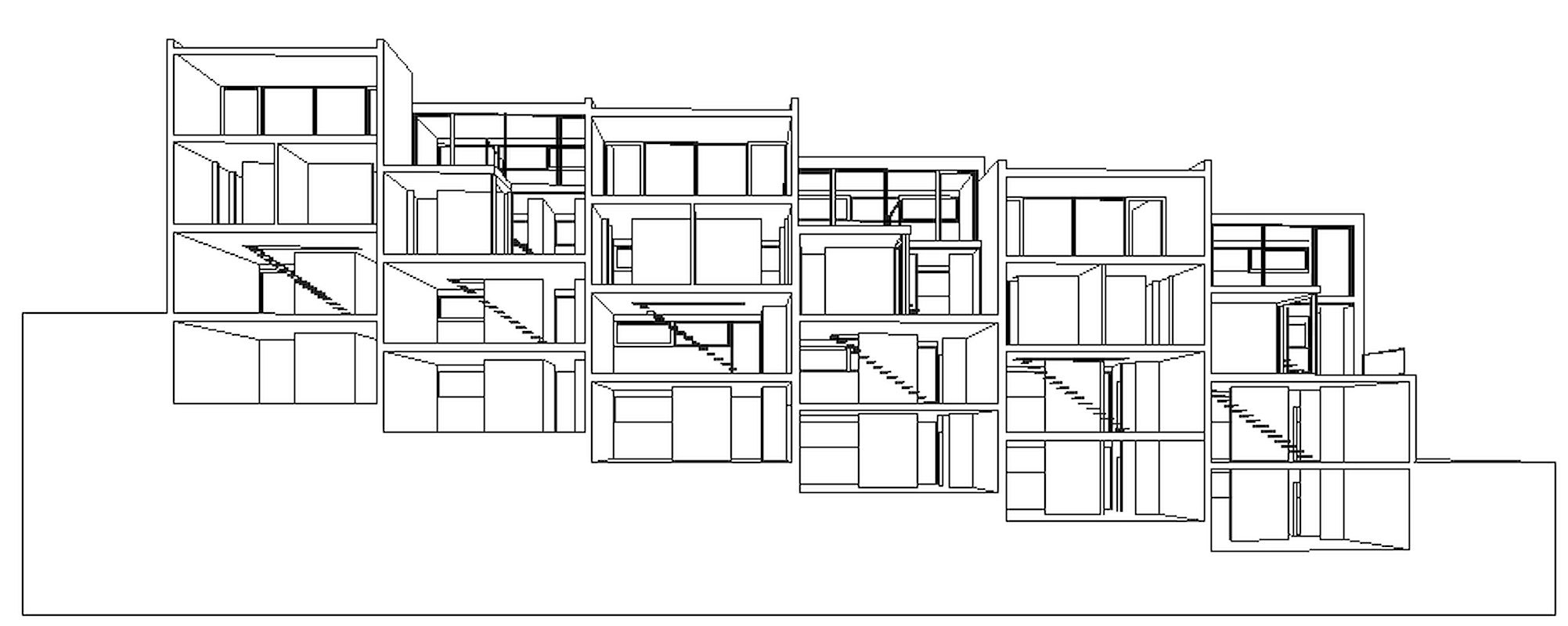
Architektur Beschreibung
Die Wohnstreifen sind in einzelne Bebauungsfelder unterteilt, die jeweils kleine Hausgruppen aufnehmen. Jede Baugruppe orientiert sich am Außenraum, sodass Obergeschosse Blickbezüge und hohe Aufenthaltsqualität erhalten. Das Siedlungsbild bleibt flexibel, der charakteristische Bezug zu Landschaft und Freiraum wird durch private und öffentliche Gärten, Spielplätze, Boule- und Bolzplätze sowie Wasserflächen verstärkt.
Konstruktion
Die Baukörper sind hochwärmegedämmt und nutzen passive Sonnenenergie. Zentrale Versorgungseinrichtungen und ein Blockheizkraftwerk gewährleisten ökonomische und nachhaltige Betriebsführung. Regenwasserrückhaltebecken reduzieren Versiegelung und dienen der Landschaftsbewässerung. Windräder auf erhöhten Landschaftsstreifen tragen zusätzlich zur lokalen Stromversorgung bei. Straßenräume sind verkehrsberuhigt, mit Carports und Garagen für den ruhenden Verkehr, und Fuß- sowie Radwege sichern die durchgängige Erschließung.
Initial Situation
The Hosenmatten new development in Lahr integrates existing farmland, orchards, and nursery areas into a large-scale, parcelled layout. Three development strips structure the site, clearly separating residential areas, infrastructure, and recreational facilities while maintaining functional connections. The development plots allow flexible construction phases with row houses, semi-detached houses, single-family homes, and multi-family buildings.
Concept
The Hosenmatten project links residential construction with landscape and open-space planning. The core theme of the new development is realized through a carefully graded sequence of private, semi-private, and public outdoor spaces. Infrastructure and recreational corridors connect the new residential strips with Lahr’s existing settlement fabric.
Architectural Description
The residential strips are divided into plots, each accommodating small housing clusters. Every building group maintains a strong connection to the outdoors, with upper floors offering views and high-quality living spaces. The overall settlement pattern remains flexible, while the characteristic relationship to landscape and open space is reinforced by private and public gardens, playgrounds, boules and ball courts, as well as water features.
Construction
The buildings are highly insulated and incorporate passive solar energy. Centralized supply facilities and a combined heat and power plant ensure economic and sustainable operation. Retention basins reduce impermeable surfaces and support landscape irrigation. Wind turbines on elevated landscape strips contribute to local power supply. Streets are traffic-calmed, with carports and garages for parking, while pedestrian and bicycle paths ensure continuous accessibility throughout the site.








