Neubau Geschosswohnungsbau, Georg-Treber-Straße Rüsselsheim
- Nutzungsart
- Gewerbe
Wohnen - Projektzeitraum
- 2017
- Typus
- Neubau
- Status
- Machbarkeitsstudie

Blick aus der Essener Straße

Stärkung der Grünräume
![Volumenmodellierung]()
Volumenmodellierung
![Schematisches Fügungsprinzip]()
Schematisches Fügungsprinzip
![Funktionsbereiche]()
Funktionsbereiche
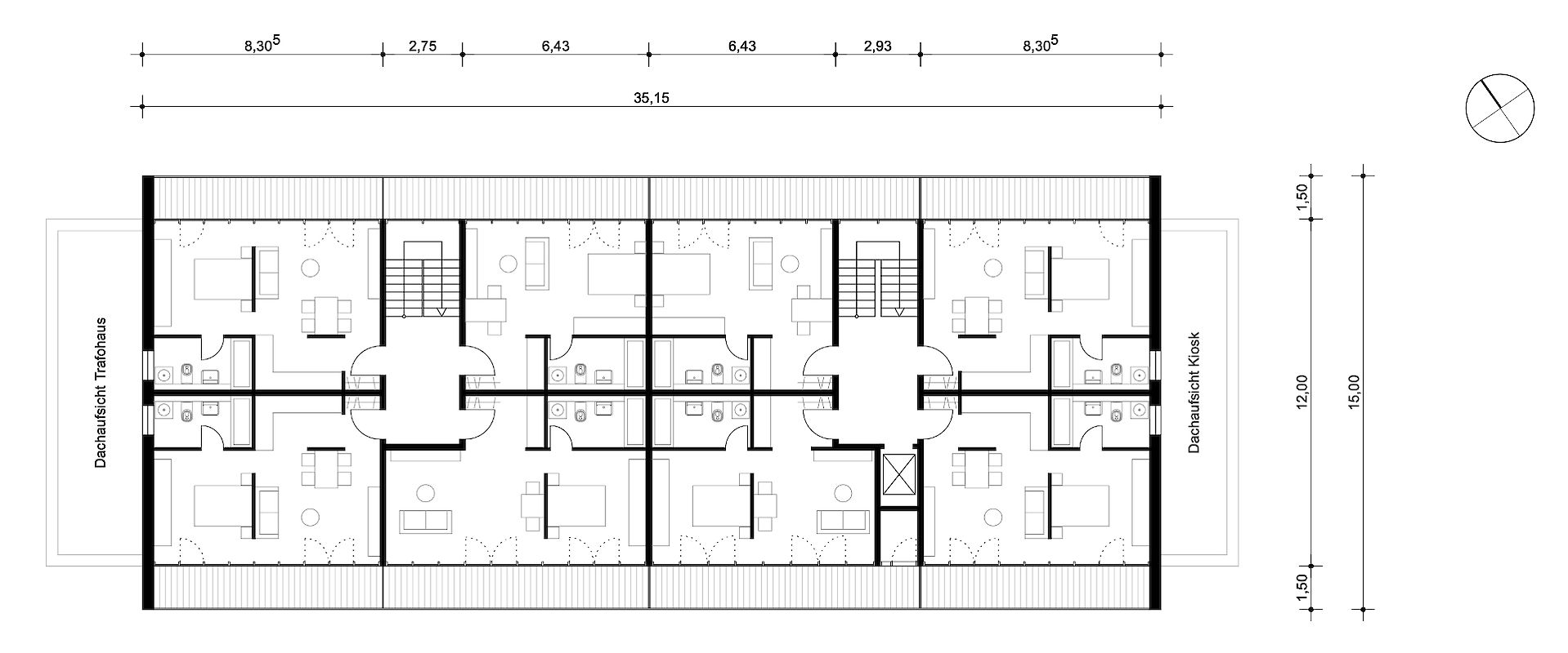
![Grundriss EG - Parkebene]()
Grundriss EG - Parkebene
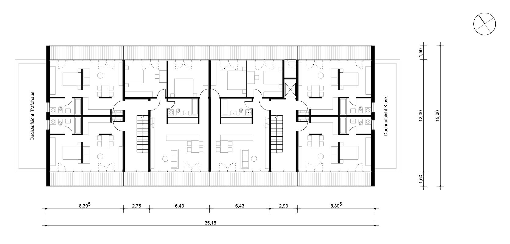
![Grundriss Regelgeschoss]()
Grundriss Regelgeschoss
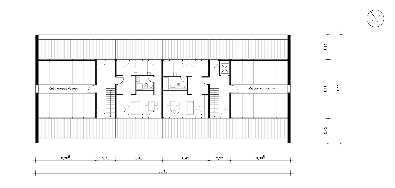
![Grundriss Dachgeschoss]()
Grundriss Dachgeschoss
![Grundriss Regelgeschoss - V2]()
Grundriss Regelgeschoss - V2
![Schnitte]()
Schnitte
![Mögliche Aufteilung der Wohneinheiten]()
Mögliche Aufteilung der Wohneinheiten
![Blick von Georg-Treber-Straße]()
Blick von Georg-Treber-Straße
![Vogelperspektive von Süd-West]()
Vogelperspektive von Süd-West
![Vogelperspektive von Süden]()
Vogelperspektive von Süden

Vogelperspektive von Süden











