Firmensitz L Mainz

Nutzungsart
Gewerbe
Projektzeitraum
2021
Typus
Neubau
Status
Warteschlange
  • Lageplan

    Lageplan

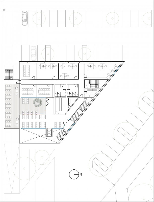
  • Grundriss Ebene 0

    Grundriss Ebene 0

  • Grundriss Ebene 1

    Grundriss Ebene 1

  • Dachaufsicht

    Dachaufsicht

  • Schnitt

    Schnitt

  • Schnitt

    Schnitt

  • Piktogramm Energiekonzept Sommer

    Piktogramm Energiekonzept Sommer

  • Piktogramm Energiekonzept Winter

    Piktogramm Energiekonzept Winter