Eltzer Kultur Hof - EKH Mainz
VERTRAUTE ORTE - NEUE WEGE - NEUE PERSPEKTIVEN
Der Bereich des Eltzer Hofes hat eine sehr bewegte Vergangenheit, von einem bedeutenden Stadtbaustein als Adelspallais im 18. Jhdt., über weitgehend private/ teilöffentliche Nutzungen als Musikhochschule/ Kleiderfabrik in den 1920/ 30er Jahren, bis hin zu seinem Ausglühen und Untergang im 2.Weltkrieg. Seine Nutzung nach dem Wiederaufbau 1965 als im Stadtgrundriss eher „versteckt“ liegende Veranstaltungshalle „Liedertafel“ wurde zur Jahrtausendwende ganz aufgegeben, da sich die Anforderungen an moderne Spielstätten rasant gewandelt haben. Seither liegt der Eltzer Hof fast vollständig brach. Für das städtische Leben ist der Eltzer Hof z.Zt. ohne Bedeutung; er wird somit in keiner Weise mehr seiner -tief im Gedächtnis der Mainzer Bevölkerung verankerten- ursprünglichen Bedeutung gerecht.
Die vorliegende Machbarkeitsstudie „Eltzer Kultur Hof“ zeigt eine realistische Möglichkeit auf, wie der Eltzer Hof als lebendiger Stadtbaustein rückgewonnen werden kann. Unter Beibehaltung der im Bewusstsein der Mainzer Bevölkerung als historisch gesetzten Außenfassaden und unter weitestgehender Bestandserhaltung des inzwischen vertraut wirkenden Blockrandes der 1960er Jahre wird das Ensemble zum breiten Nutzen Dritter besonders im Inneren mit einem für jedermann erlebbaren neuen und zeitgemäßen „Gesicht“ erstrahlen können. Insbesondere durch die Freimachung des momentan zu fast 100% überbebauten Innenbereichs wird hier erstmals eine über 700 qm große Innenhof-Fläche mit Gastronomie, Kunst und Kultur zurückgewonnen und durch zeitgemäßen Wohnungsbau in den angrenzenden Gebäuden ergänzt. Von einem in dieser Art und Weise wiederbelebten „Eltzer Kultur Hof“ werden auch wieder wertvolle Impulse auf das Mainzer Stadtleben ausgehen.
Status Quo
In seiner bauhistorischen Bedeutung wird das barocke Stadtpalais Eltzer Hof als Teil des kunstgeschichtlich überlieferten Stadtbildes vom Goldenen Mainz eingestuft. Aber aufgrund seiner überholten, d.h. nicht mehr zeitgemäßen Infrastruktur als ehemalige Veranstaltungsstätte „Liedertafel“ aus den frühen 60-er Jahren des 20. Jhds. spielt der heutige Gebäudebestand für das städtische Leben eine vollkommen untergeordnete Rolle und kann seiner eigentlichen historischen Bedeutung in keiner Weise mehr gerecht werden. Der barockisierende Quartiersblock vermittelt im Bereich der Kreuzung Bauhofstraße und Mittlere Bleiche - trotz seines architektonischen Potentials - ohne attraktives Nutzungsangebot ein ausgesprochen „lebloses“ Bild. Entsprechend unwirtlich und unattraktiv ist die Fußgängererschließung in diesem Bereich; für Passanten gibt es momentan keinen Grund, hier die Route zu wählen.
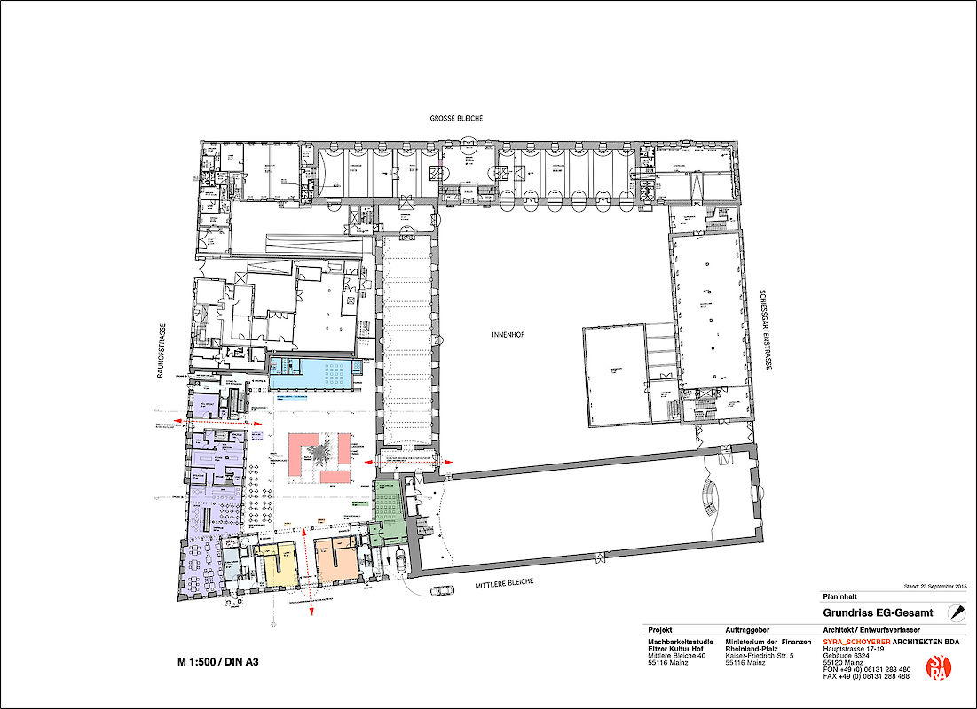
Städtebau und Volumenkomposition/ Hofräume als Platzabfolge mit stadträumlicher Anbindung
Der vorgefundene, nach den Bombenschäden historisierend wieder errichtete, Quartiersblock ist in seiner Außenkontur klar gegenüber dem angrenzenden Stadtraum abgegrenzt. Der Innenbereich war ursprünglich durch unterschiedlich große Innenhöfe gegliedert. Diesem Hofkontinum entsprechend wird vorgeschlagen, die Innenhofbebauung der Liedertafel vollständig rückzubauen und die Bauvolumen der nachgebildeten Adelspaläste inkl. der Mansarddächer als dominante Dachform wieder her zu stellen. Der „Eltzer Kultur Hof“ soll erstmals nach dem zweiten Weltkrieg wieder als räumliche Komposition mit einem ausgewogenen Verhältnis von Baukörpern und Hofraum in Erscheinung treten. Im Gesamtensemble wird somit der große Hof des Landesmuseums durch einen kleineren Hof im Bereich des „Eltzer Kultur Hofes“ mit dem Marstall als attraktivere Schnittstelle ergänzt. Der gesamte EG-Innenbereich erhält wieder seine ursprüngliche durchgängige, teils gedeckte - teils offene Platzabfolge und wird als Plattform unterschiedlichster Veranstaltungen und Kommunikation wahrgenommen. Über die historischen Toranlagen an der Mittleren Bleiche und der Bauhofstraße erfolgt die Öffnung und stadträumliche Anbindung des Gesamtensembles an das städtische Wegenetz.
Umgang mit der Bausubstanz
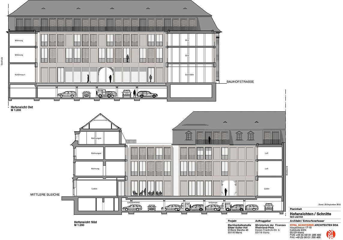
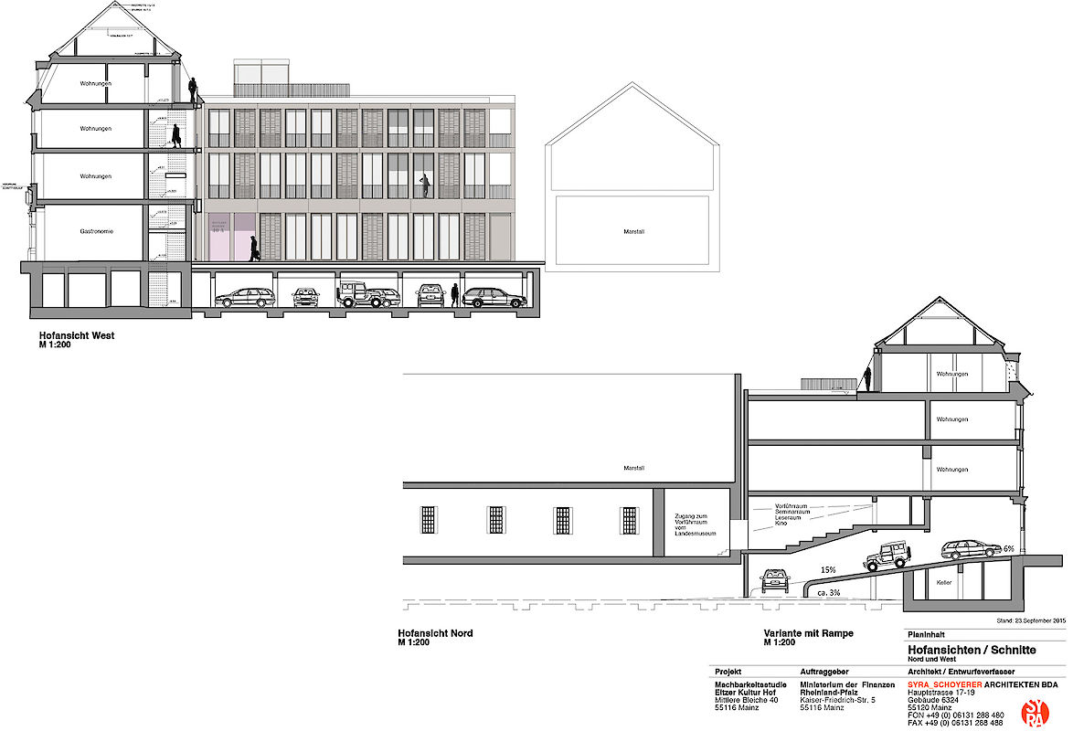
Die Fassaden und Dächer des Blockrandes, d.h. die Außenfassaden und die Mansarddächer wurden in den 60er Jahren barockisierend rekonstruiert und werden längst von der Mainzer Bevölkerung als Teil des überlieferten Stadtbildes vom Goldenen Mainz wahrgenommen. Dem entsprechend sollen im Bereich der Außenfassaden mit der Denkmalpflege abgestimmte Ergänzungen und Ertüchtigungen vorgenommen werden. Im Gegensatz hierzu sind aufgrund der raumgreifenden Innenhofbebauung der Nachkriegszeit die Hoffassaden nicht mehr ansatzweise erhalten. Beim Thema Barockfassade bietet es sich nun für die notwendige Neukonzeption der Innenhoffassaden an, den Schwerpunkt auf die Fassade als Schicht der räumlichen Übergänge zu richten und weniger die Fassade als Raumabgrenzung zu begreifen, denn der Übergang von Räumen ist per se schon ein charakteristisches Barockthema, ohne dass zwingend eine formale Auseinandersetzung mit historischen Fassaden folgen muss. Bei der Fassaden-Neukonzeption gibt das historische Fassadenraster die Rhythmik vor; es wird durch die Betonung der Vertikalen (Fassadenraster) und der Horizontalen (Geschosshöhen) die Fassade konsequent von einer flächigen zu einer räumlichen Fassade transformiert. Diese unterschiedlich tiefe und durch galerieartige Loggien gegliederte Fassadenschicht schafft auf allen Ebenen einen gleitenden Innenraum- Außenraumübergang mit hoher Aufenthaltsqualität. Die Fassadentiefe mit der hier nur beispielhaft angedeuteten äußeren Fassadenschicht aus großflächigen Holzklappläden ermöglicht den Nutzern je nach Bedarf und je nach Sonnenstand eine abgestufte Variation von Transparenz und Geschlossenheit, was letztlich als stetiges Wechselspiel von Helligkeit und Schatten wahrgenommen wird. Aufgrund intensiver Bestandsuntersuchungen werden sowohl die tragenden Bauteile im Gebäudeinneren als auch die bestehenden Treppenerschleßungen in einem guten Zustand eingeschätzt und darauf aufbauend wurden Grundrisse entwickelt, bei welchen sich wirtschaftliche Logik, architektonischer Anspruch und nutzungsbedingte Funktionalitäten sehr gut kombinieren lassen. Die Ressource Architektur wird geschont oder wiederverwertet und nebenbei wird unter Würdigung der „Grauen Energie“ real Energie gespart. Es wird der Beweis angetreten, dass unter weitestgehendem Erhalt von Gebäudesubstanz moderne und attraktive Flächen für Kultur, Gastronomie Wohnen und Büros geschaffen werden.
Vorgeschlagene Nutzungen
Für den „Eltzer Kultur Hof“ werden im EG Gastronomie/ Kultur/ Kunst/ Veranstaltungen und Ausstellungen bzw. ein ausgewogenes Verhältnis von Büroflächen in den darüber liegenden Stockwerken mit zugeordneter, ausreichend dimensionierter PKW-TG- Parkierung in der Tiefgarage im frei zu räumenden Blockinnenbereich vorgeschlagen.
Mobilitätsangebote
Parallel zum Wohnungsangebot für Patchwork-Konstellationen, WGs und gemeinschaftliches Wohnen im Allgemeinen werden auch konsequent für die Mobilität „Sharing-Prinzipien“ wie Car-Sharing und Bike-Sharing vorgeschlagen. In der Tiefgarage sind entsprechende Stellplätze vorgesehen - auch mit Ladestationen für Elektroautos. Ebenso ist im Innenhof ein Teil des Pavillons als Ladestation für (ggf. gemeinschaftlich genutzte) E-Bikes vorgesehen.
Fazit
Durch die vom Eigentümer Land beispielhaft mit der Machbarkeitsstudie initiierte Neukonzeption wird die Basis geschaffen, nachhaltig die Bedeutung des Bleichenviertels als attraktivem Kulturquartier in Reminiszenz an das Goldene Mainz zu etablieren. Die ab dem 1.OG überwiegende Wohnnutzung ermöglicht in Verbindung mit der neu errichteten TG im Innenhof ein besonders zeitgemäßes „Wohnen in der Stadt“, das auf dem Mainzer Immobilienmarkt sicherlich entsprechende Nachfrage auslösen wird. Bislang wurde eine informelle Abklärung des Baurechts mit der Stadtverwaltung geführt, eine formelle Zustimmung der Stadt ist noch offen.
Publikationen
| 2015 | isb.de - Wohnen und Leben im Stadtpalais „Eltzer Kultur Hof“ in Mainz | ISB.RLP.DE | |
| 2015 | Eltzer-Kultur-Hof | ||
| 2015 | Merkurist - Wohnen und Kultur im Eltzer Hof | Artikel | MERKURIST.DE |
| 2015 | Allgemeine-Zeitung - Eltzer Hof wird wiederbelebt | Artikel | |
| 2015 | Allgemeine Zeitung - Land will privaten Investor für Eltzer Hof in Mainz | Artikel |
















