Dreifachsporthalle Rockershausen
ArGe SCHOYERER ARCHITEKTEN_SYRA und ARUP Engeneering
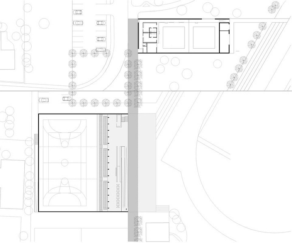
Sport- und Judohalle werden aufgrund der unterschiedlichen Nutzungsanforderungen räumlich getrennt und hinsichtlich der Außenräume differenziert. Die Sporthalle für Mannschaftssportarten und publikumsaktive Wettbewerbe profitieren vom nahtlosen Übergang von Innen nach Aussen – die Geländetopographie setzt sich im Foyer als Erschließung fort. Das körperhafte Dachvolumen der Sporthalle mit seiner transluzenten Oberfläche greift über die gesamte Wegesbreite und bezieht somit den Aussenraum in den Foyerbereich mit ein. Demgegenüber erhält die Judohalle einen introvertierten und meditativen Innenhof.
Publikationen
| 2004 | Wettbewerbe Aktuelle - Ausgabe 07/2004 |
Wettbewerbe
| 2004 | Ankauf / Sporthallenbau - Wettbewerb Ankauf |









