Bleichstraße 8 Ingelheim
Teilnahme am Tag der Architektur in Rheinland-Pfalz 2021
Teilnahme am Tag der Architektur in Rheinland-Pfalz 2020
Städtebau und Lage
Der 3-geschossige Wohnungsneubau in Ingelheim, Frei-Weinheim liegt nur ca. 800 Meter von Rheinufer und der Fähre in den Rheingau entfernt und die Bleichstraße bildet die Grenze zwischen altem Ortskern im Norden und dem südlichen Gewerbegebiet.
Nutzung und Typologie
Der Entwurfsgedanke von SCHOYERER ARCHITEKTEN_SYRA war es, mit dem Neubau ein Bindeglied zwischen altem Ortskern und Gewerbegebiet zu schaffen. Es ergab sich ein C-förmiger Baukörper mit geschlossener Kante zur Bleichstraße und Innenhof nach Süden.
Durch das zweifach rückspringende Staffelgeschoss an der 43m langen Nordseite entsteht der Eindruck einer 2-Geschossigkeit, welche den Straßenraum nicht zu sehr verdunkelt. Die Rücksprünge bilden Dachterrassen und ermöglichen einen wunderschönen Blick über den alten Ortskern von Frei-Weinheim und den angrenzenden Rheingau. Durch die Nord-West Ausrichtung kann man auf den Dachterrassen die Abendstunden bei untergehender Sonne genießen.
Innenhofausbildung
Die über eine Gebäudeumfahrt erschlossene Hoffläche an der Südseite nimmt Funktionen wie PKW-Stellplätze auf, und an den Rändern abgezäunte Stellflächen für Mülltonnen. Im Innenhof liegen, zu den PKW-Stellplätzen durch einen Grünstreifen mit pflegeleichten Sträuchern abgetrennt, die Abstellflächen für Fahrräder. Auch die Parkplätze sind durch Grünstreifen mit Sträuchern und Bäumen unterbrochen. Der Kinderspielplatz im Grünen liegt hinter dem Nachbargebäude, das ebenfalls dem Bauherrn gehört.
Architektur
Das Erdgeschoss wurde als Hochparterre ausgebildet, denn der Höhenversprung von ca. 75cm verbessert den Wohnkomfort im Erdgeschoss unmittelbar und nachhaltig.
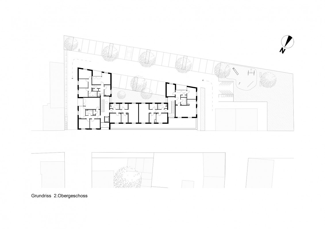
Erschlossen wird das etwa 43 Meter lange Gebäude über zwei separate Eingänge, ein Hauseingang verfügt über eine barrierefreie Erschließung mit Aufzug. Die 3-Spänner Treppenhäuser bilden mit ihren durchgängigen Galerien und großflächigen Fenstern zur Straße und zum Innenhof lichtdurchflutete Räume mit hoher Aufenthaltsqualität und gliedern den Baukörper zusätzlich.
Die beiden Treppenhäuser erschließen insgesamt 17 Wohneinheiten und neun Wohneinheiten sind über einen Aufzug barrierefrei erschlossen. Zwei Wohnungen erfüllen die Anforderungen an barrierefreies Wohnen und eine Wohnung wurde als Rolli-Wohnung geplant.
Die Wohnflächen betragen 60 m² bis 110 m² und die privaten Freibereiche wie Loggien oder Dachterrassen sind schwellenlos erreichbar. Die Grundrisse der einzelnen Wohnungen sind eine Mischung aus klassischen Wohnungsgrundrissen mit Flurerschließung, sowie Lofts mit innenliegendem Sanitärblock als Gliederungselement. Alle Wohnungen haben Tageslichtküchen, mit teilweise direktem Zutritt zu den privaten Freibereichen.
Ausstellungen
| 2021 | Architektenkammer RLP - Tag der Architektur | DIEARCHITEKTEN.ORG | |
| 2020 | Architektenkammer RLP - Tag der Architektur | DIEARCHITEKTEN.ORG |
Auszeichnungen
| 2021 | Architektenkammer RLP - Tag der Architektur | DIEARCHITEKTEN.ORG | |
| 2020 | Architektenkammer RLP - Tag der Architektur | DIEARCHITEKTEN.ORG |
Publikationen
| 2020 | Archello.com - Bleichstraße 8 | ARCHELLO.COM |




























