Aufstockung Architektenkammer Rheinland-Pfalz Mainz
Mainz und seine Provisorien aus der Nachkriegszeit
1873 wurde nach kaiserlicher Genehmigung die Stadterweiterung beschlossen und in den Folgejahren die Neustadt nach den Plänen von Eduard Kreyßig errichtet. Seine Grundidee war die Erschließung durch ein symmetrisches, gitterförmiges Straßensystem aus Längs- und Querachsen, die durch grüne Alleen und Plätze aufgelockert werden. Seine Planungen orientierten sich an der Umgestaltung von Paris im 19. Jahrhundert durch Baron Haussmann.
Status Quo
Die Architektenkammer Rheinland-Pfalz betreibt ihre Landesgeschäftsstelle am Hindenburgplatz 2-6 in Mainz, in einem sehr sachlichen Nachkriegsbau, bar jeder Eigenschaft oder Ambition mit dem Stadtraum in Austausch zu treten. Klassische Themen wie Blockrandschließung, Eckbetonungen und Erker, Hochparterre und Eingangsportale kennt das Gebäude nicht und im Bereich des erdgeschossigen Flachdachanbaus verweigert sich das Gebäude komplett der Interaktion mit dem Städtebau, welcher seit knapp 150 Jahren die Neustadt prägt.
Zur Aufgabenstellung
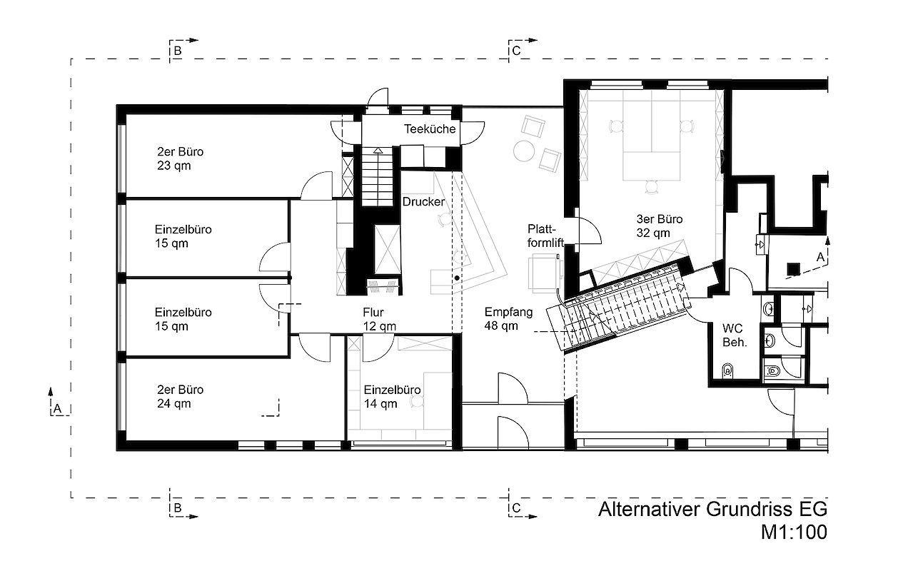
Dieses Provisorium aus der Nachkriegszeit ist mit seiner autistischen Gebäudehülle für eine Nutzung mit kommunikativem Auftrag eine schwere Bürde – ein echtes Dilemma für die Architektenkammer! Umso weniger verständlich sind daher die profillosen Anforderungen der Aufgabenstellung: „durch die Aufstockung des eingeschossigen Erdgeschossbereichs sollen zusätzliche Büroräume geschaffen werden - die übrigen Raumbereiche der Landesgeschäftsstelle sollen im Wettbewerb nicht bearbeitet werden“. Als Beurteilungskriterien werden funktionale Kriterien genannt, glücklicherweise wird noch architektonische Qualität abgefragt, aber städtebauliche Positionen scheinen hier ausdrücklich nicht verlangt, so als ginge es um die Bebauung einer beliebigen Gewerbegebietsparzelle und nicht um einen Ort mit Genius Loci. Staubtrocken geht es darum, im EG die Raumstruktur unverändert zu belassen und im OG den Raumbedarf zu ergänzen, obwohl die EG-Decke nicht für eine Aufstockung vorgesehen ist.
Im Grunde spiegelt die Aufgabenstellung das o.g. städtebauliche und architektonische Dilemma wider und die Verfasser weigern sich, die vorhanden Mängel zu verfestigen und die Aufgabe nur in der funktionalen Raumprogrammerfüllung zu sehen - als gäbe es in der Architekturgeschichte bei repräsentativen Bauten (oder zählt die Landesgeschäftsstelle der ARCHITEKTEN-Kammer nicht dazu?) keine Gliederungen und Schichtungen - kein Piano Nobile oder keine Bel Étage!?
Wer schon mal ein Seminar bei der Architektenkammer besucht hat, weiß um die unglückliche Raumausrichtung und die daraus resultierenden Interaktionen und um das Raumklima, denn Vorträge werden (nicht nur im Hochsommer bei offenen Fenstern) zwangsläufig durch Passanten gestört. Bevor sich dieses Provisorium und somit dieses Dilemma weiter manifestiert, schlagen die Verfasser eine gründliche Revision der Aufgabestellung vor – schließlich wird die Landesgeschäftsstelle nur ca. alle 25 bis 30 Jahre umgebaut (zuletzt 1995).
Zu Architektur und Städtebau
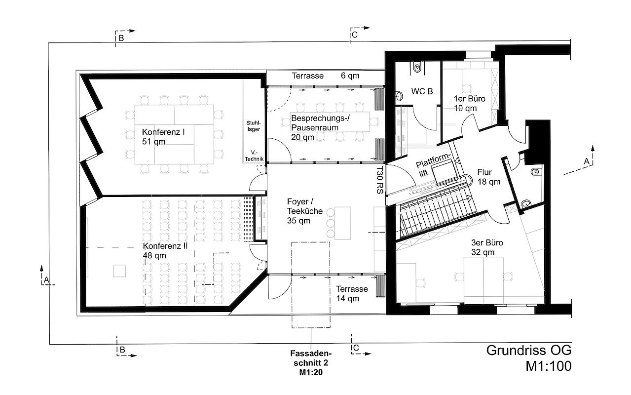
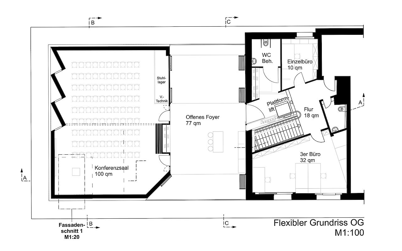
Unter genauer Beachtung der konstruktiven Vorgaben schlagen die Verfasser eine klassische Nutzungsschichtung vor – unten die Nebenräume (in diesem Falle die Büros, denn das Funktionieren darf vorausgesetzt werden) und oben die Beletage mit Vortrags-, Konferenzräumen und Foyer, denn nur hierdurch teilt sich die Architektenkammer dem Stadtraum sichtbar mit, wenn das Foyer belebt ist und in den Räumen getagt und diskutiert wird, denn das ist das Bild, welches die Kammer auch nach Außen kommunizieren sollte, damit der Berufsstand in der Öffentlichkeit wahrgenommen wird!
Die turmartige Erhöhung an der Gebäudeecke fungiert in beide Richtungen als Laterne, ohne die Forderung nach der Blickfreiheit aus dem 2. Bestands-OG wirklich zu schmälern. Übrigens werden auch künftige Seminare davon profitieren, wenn nicht mehr der ausgeführte Hund die Aufmerksamkeit der Teilnehmer beansprucht, sondern der Vortragende. Eine Beletage hat nicht nur funktionale Vorteile, sondern auch ganz klassische stadträumliche Wirkung.
Nutzungsschichtung /-optimierung, Raumkonfigurationen und Barrierefreiheit
Durch die Nutzungsschichtung und Verlagerung der Konferenz- und Besprechungsräume nach oben in die Beletage gekoppelt mit dem großzügigen Foyer, können bis zu 3 Besprechungen oder kleinere Konferenzen mit bis zu 50 Teilnehmer gleichzeitig, oder auch eine große Konferenz mit knapp 100 Teilnehmern stattfinden. Besonders an heißen Sommertagen werden Konferenzen erträglicher, da das Foyer zu zwei Seiten komplett geöffnet und quergelüftet werden kann, während der Dachvorsprung über der Terrasse in den Sommermonaten die Einstrahlung der hochstehenden Sonne stark reduziert und im Winter ein tageslichterfülltes Foyer ermöglicht. Auch die nordwärts eingeschnittenen Fenster im Konferenzsaal sorgen für ein angenehmes, weil schattenfreies Tageslicht.Abgehängte Akustikdecken kompensieren (besonders im Foyer) die Schallreflektionen des hohen Glasanteils.
Selbstverständlich ist die Beletage über einen treppenbegleitenden Podestlift vom Eingangsbereich der AK direkt erreichbar.
Zur Konstruktion - Massiv mit Holz bauen
Die Konstruktion der Aufstockung ist statisch vollkommen von dem Ur-Tragwerk gelöst und spannt freitragend mittels einer Lignatur-Systemdecke über das Gebäude, ohne die bestehende Deckenkonstruktion zu belasten. Sämtliche vertikalen Lasten werden über die Bestandsattika in darunterliegende Außenwände eingeleitet. Über schubfeste Verbindungen werden horizontale Aussteifungslasten ebenfalls in die steifen Außenwandscheiben des vorhandenen Massivbaus eingeleitet.
Die vorhandene Decke über dem Versammlungsraum, die insbesondere auch brandschutztechnisch keinen ausreichenden Feuerwiderstand aufweist, braucht nicht ertüchtigt zu werden. Im Brandfall dient sie als „konstruktives Hitzeschild“. Die Holzkonstruktion wird nach den Anforderungen des Brandschutzes und der Statik ausgelegt.
Lignatur-Systemdecken bestehen aus Hohl-Kastenelementen, die stützenfrei über große Spannweiten - wie die hier gegebenen 12 m - problemlos überspannen kann. Das System erfüllt die Brandschutznormen, wirkt schalldämmend und wird als Fertigteil, inkl. technischer Einbauten geliefert und kann so in kurzer Zeit trocken errichtet werden. Darüber hinaus kann das Element brandschutztechnisch ertüchtigt, Schall reduzierend, akustisch wirksam und wärmedämmend konfiguriert werden, ohne die statische Höhe zu überschreiten. Es reguliert die Raumluft-Feuchte und schafft so ein behagliches und ausgeglichenes Raumklima - im Sommer wie im Winter. Eine Lignatur-Decke entspricht unbestreitbar der Auffassung eines modernen und nachhaltigen Baustoffes und kann auch mit Gründach verwirklicht werden.
Lignotrend-Außenwände erfüllen die gleichen Anforderungen, können insbesondere auch als zwischengedämmtes Fertigteil geliefert werden, welches beliebige Außenfassaden tragen kann. Damit schafft man alle Vorteile des Holzbaus miteinander zu vereinen und die Dimensionen auf ein statisches Minimum zu reduzieren.









